万科景观标准化配置由活动场地、软景、硬景、水景、其他设施五个部分组成,分别从前期规划、景观设计、案例分析等这几方面进行配置分析。
01
活动场地标准化配置
游泳池
一
前期规划
1.1 布置原则
1. 游泳池必须远离市政道路、社区医疗机构、垃圾处理场、垃圾中转站等易产生异味、灰尘的场所,处于上述场所的上风区域。
2. 游泳池应避免于高层阴影区布置,保证充足日照。
3. 游泳池的布置应便于居住组团居民前往煅炼,服务半径以220m(3分钟内步行到达)为适。宜设于居住组团的中心区域。
4. 游泳池的布置除了考虑居民的可达性之外,还要考虑分期开发和营销组织。规划设计过程中,设计管理部应与营销部充分沟通,合理布置游泳池,以同时满足营销需求和使用者需要。
1.2 泳池面积
1. 泳池总面积包括成人池,儿童池,幼儿戏水池(如有)的总水面面积。可以为单独集中的1处泳池,也可以分成2-3处泳池。原则上要求其中一处泳池总面积不应小于500平方米且不应超过1,500平方米为宜。如果总需求大于1,500平方米,应该设置两处以上泳池。
2. 设x为万科社区户数,P为泳池总水面面积,则各品类的泳池的建议总水面面积为
G2/C:P= 0.70x+500
G3/T1:P= 0.60x+450
T2:P= 0.60x+450
3.成人池水面面积:由于品类人口构成差异,不同品类占泳池总水面面积的百分比略有不同:
G2/C:80%-85%
G3/T1:90%-95%
T2:80%-85%
4.儿童池水面面积:由于品类人口构成差异,不同品类占泳池总水面面积的百分比略有不同:
G2/C:15%-20%
G3/T1:5%-10%
T2:15%-20%
5.最大容量人数:成人池水面面积 / 3+儿童池水面面积 / 2.5
6.休息平台:面积=0.8m2 /人×最大容量人数,围绕池边的平台应交圈,方便后期检修与清洁。
二
景观设计
2.1 平面分区
1. 平面形状:宜采用矩形或矩形组合方式。必须保障泳池周边至少三处观察点前视能够观察到任何角落。
2. 区域设置:
成人池应分两部分:练习区与戏水区。练习区提供长距离的练习泳道(25-30米),宽度2-3条泳道为宜。戏水区应靠近浅水区并设置入池台阶,平面形状开阔。两个区域不应重叠或交叉。
儿童池水体应与成人池联通,使用同一套水处理设备,但应设置平台或走道分隔成人池和儿童池,防止儿童直接进入成人池,造成危险。
2.2 功能配置
1. 入池流线:更衣室强制喷淋洗脚池泳池
2. 更衣室
洗手间个数 = 最大容量人数/60
淋浴间个数 = 最大容量人数/30
储物柜个数 = 最大容量人数/2
3. 强制喷淋设备:更衣室与游泳池走道中间设有强制喷淋设备,男、女各一套,每套喷头数量不少于4个。应设置红外感应开关,节省水源
4. 洗脚池应与喷淋池分开。
5. 座椅:儿童池旁应设座椅,方便陪同小孩的大人休息。休息平台上可放置躺椅、阳伞和座椅。
6. 救生员:水面面积在250㎡以下的,应至少设置2个救生观察台;水面面积在250㎡以上的,按面积每增加250㎡及以内,增设1个救生观察台的比例配置救生观察台。救生观察台高度不低于1.5m
7. 照明设备:游泳池水面光照度不低于80LX,照明设备距离水面的高度不低于5M。
2.3 植物栽种
1. 由于落叶植物容易污染水体,不利于后期清洁,故不宜在泳池附近栽种落叶植物,如竹子、凤凰木等等。
2. 泳池绿岛和池边不宜选择根系发达的树种,如榕树等,以免破坏池壁。
3. 泳池池边不宜布置枝叶茂密的树种,以免遮挡救生员视线,导致增加救生员数量。
4. 池边种植区应设置排水沟,以免雨水冲刷泥土污染水面。
三
案例分析
以深圳、广州建成项目出现的问题为案例,分析提出解决建议。
四
设计强条
泳池设计强条(平面示意图)
1.与建筑间距:当建筑物靠泳池一侧外墙有门窗洞口时,C段距离必须≥4m
2. 功能分区:在泳池设计时必须分出A、B两区,当A区进行封闭管理时不可影响B区正常使用。
3. 安全监护:设计形态必须以满足一个救生员进行全场监护为标准,不可有视线死角,泳池内及边缘不宜种植影响监护视线的大树。
4. 水深:成人池:最浅端(小于0.8m)最深端(1.4m)
儿童池:0.6m
戏水池:0.3m
5. 材料:泳池及周边活动区域地面材料必须采取防滑措施,地面、台阶边角打磨,无突出边角和锋利的切面,地面材料应便于冲刷。
6. 设备:机房应靠近游泳池,最远不得离救生员20米的距离。
7. 不宜结合功能区:儿童戏沙池、垃圾中转站等易产生异味、灰尘的场所。
运动场地
一
前期规划
1.1 布置原则
1. 运动场地必须远离社区医疗机构、垃圾处理场、垃圾中转站等易产生异味、灰尘的场所,处于上述场所的上风区域。
2. 运动场地的布置应便于居住组团居民前往煅炼,服务半径以220m(3分钟内步行到达)到达为适。但是容易产生噪音或者晚上照明强烈的项目应远离住宅。
3. 运动场地可布置于室外,会所室内场馆或者架空层。
4.运动场地必须考虑多用途功能和分时段使用。一块场地可以兼顾多种项目。
1.2 场地面积
1. 运动场地面积包括室外场地,室内场地和架空层场地。
2. 运动场地可以兼顾多种项目,也可以兼顾老人和小孩的活动场地,如网球场可成为跳操场地,篮球场可以兼顾羽毛球场功能等等,计算面积时可以把兼顾项目重复计算。
3. 设x为万科社区户数,E为运动场地面积,则各品类的建议运动场地面积为
G2/C:E=0.40x+500
G3/T1:E=0.40x+500
T2:E= 0.37x+450
1.3 推荐配置:
1. 篮球场
容纳人数多,受年少年和成年人欢迎。同时可以兼作老人跳操场地。噪音比较大,夜间照明会产生光污染,必须考虑远离住宅布置和控制开放时段。
2. 乒乓球桌
在社区内广受欢迎,适合各年龄段。可以放置于架空层,会产生一定噪音,必须控制开放时段。
1.4 可选配置:
1. 网球场
可以体现社区的档次,作为销售的一个重要手段。但是容纳人数少,管理维护费用高,夜间照明会产生光污染。
2. 羽毛球场
在社区内广受欢迎,适合各年龄段。受室外风环境影响,宜布置于室内。
3. 健身房
布置于会所或者架空层
4. 练舞室/瑜伽室
布置于会所或者架空层
5. 桌球室
布置于会所或者架空层
二
景观设计
三
案例分析
以深圳、广州建成项目出现的问题为案例,分析提出解决建议。
儿童活动场地
一
前期规划
1.1 布置原则
1. 儿童活动场地应布置在居住组团中间,远离区内机动车道路。服务半径以儿童步行1分钟(40m)到达为适。但儿童活动场地容易产生噪音,应与住宅有一定距离。
2. 儿童活动场地可布置于室外或者架空层。
3. 儿童活动场地应临近老人活动场地。
1.2 场地面积
1. 儿童活动场地面积包括室外场地和架空层场地。
2. 设x为万科社区户数,K为儿童活动场地面积,则各品类的建议儿童活动场地面积为:
G2/C:K= 0.20x+200
G3/T1:K= 0.10x+100
T2:K=0.15x+150
1.3 推荐配置
1.秋千 2.木马 3.滑梯 4.爬梯 5.平衡木 6.跷跷板
以上配置参与度很高,非常受欢迎,应考虑地面用橡胶软垫,慎防儿童跌落受伤。
1.4 可选配置
1.泡泡池 2.攀爬绳网 3.戏水池 4.沙池
二
景观设计
三
案例分析
以深圳、广州建成项目出现的问题为案例,分析提出解决建议。
老人活动场地
一
前期规划
1.1 布置原则
1. 老人活动场地可以分为动态项目和静态项目。动态项目以老人跳操广场,门球场为主,静态项目包括麻将棋牌空间,按摩走道,活动器械等等。静态项目服务半径以老人1分钟(65m)到达为适。动态项目因为产生噪音较大,应远离住宅布置。
2. 老人活动场地可以与运动场地,如篮球场,羽毛球场等重叠
3. 老人活动场地应充分考虑可达性和无障碍通道
4. 老人活动场地可以布置于室外,平台和架空层
1.2 场地面积
1. 老人活动场地面积包括会所室内场地,室外场地和架空层场地。
2. 设x为万科社区户数,S为老人活动场地面积,则各品类的建议老人活动场地总面积为:
G2/C:S= 0.25x
G3/T1:S= 0.63x
T2:S= 0.50x
1.3 推荐配置
1. 跳操广场:广受欢迎,但考虑到噪音影响,不宜过大或接近住宅。地面应采用硬质铺装,场地平整
2. 门球场:广受欢迎,但考虑到噪音影响,不宜接近住宅。
尺寸为20×25m或 15m×20m,周围留出2m左右的自由区。
地面一般采用粘土或草坪,但全天候人工草坪场地、透水型人工草坪更合适。
3. 棋牌活动:可布置于架空层和会所,应重视位置的选择与空间的质量。
1.4 可选配置
1. 按摩走道:参与性强,可以放在人流必经之路上。
2. 锻炼器械:受欢迎程度一般,应放置于可达性比较强的地方,如组团中心,否则使用率很低。
二
景观设计
三
案例分析
以深圳、广州建成项目出现的问题为案例,分析提出解决建议。
宠物活动场地
建议:不少于100m2的宠物活动场地,硬质场地,要为业主设置休息座椅,活动场地内要设置宠物饮水器,宠物厕所等等
02
软景标准化配置
一
植物品种选择
1.1 功能性植物
1. 防尘降噪类植物
? 功能性:防尘降噪植物
? 原理 :选用速生及抗逆性强树种,3-5年内成长为成型乔木,起到防尘降噪的保护作用,可有效阻隔社区外围不良环境对住区造成的影响。
? 使用区域:红线外城市绿化带
? 常用树种:桉树、相思、夹竹桃等
? 实施案例:深圳四季花城、深圳城市花园
2. 生态恢复类植物
? 功能性:生态恢复
? 原理 :选用本土速生藤本或深根性植物,以其特有的强生命力,可攀援、匍匐生长的特点,可在6个月内使受到破坏的山体及边坡恢复正常的生态环境。
? 使用区域:山地、边坡
? 常用植物:蟛蜞菊,马樱丹等
? 实施案例:深圳17英里、深圳东海岸
3. 水体净化类植物
? 功能性:水体净化
? 原理 :水生植物的根系可阻拦、吸收、转化进入水体的有机质及营养盐,防止水体的富营养化,起到净化水体的作用。
? 使用区域:水景、人工湿地、人工湖、自然水体
? 常用植物:芦苇、香蒲、慈菇、唐昌蒲、睡莲、荷花、再力等
? 实施案例:深圳第五园、深圳东海岸
1.2 观赏性植物
1. 观形类植物
? 观赏性:观形类
? 使用区域:行道树、遮阴活动场所、主要景观点
? 常用树种:油棕、大王椰子、榕树、小叶榄仁、凤凰木、秋枫、人面子等
2. 观花类植物
? 观赏性:观花类
? 使用区域:根据景观设计意图确定
? 常用品种:鸡蛋花、黄槐、羊蹄甲、大花紫薇、凤凰木、鸡冠刺桐、串钱柳、勒杜鹃、大叶龙船花等
3. 观果类植物
? 观赏性:观果类
? 使用区域:根据景观设计意图确定
? 常用树种:柚子树、人心果、猫尾木、杨桃等
二
植物配置原则
2.1 居住区绿化安全设计原则
? 居住区属于人口相对集中、活动相对密集的区域,其绿化设计应更多地顾及到老人及儿童的身体安全,尽可能避免在人流量大及容易触摸到的区域种植有毒、有刺及会对人体健康产生不良反应的植物
? 慎用树种:龙舌兰、木棉、夹竹桃、红刺露兜等
2.2 居住区不同功能场所配植方式
1. 街道绿地
行道树是街道绿地的基本组成部分,树种选择需满足:
? 树冠大,枝叶浓密;
? 寿命长,深根性;
? 耐修剪,抗病虫;
? 落果少,对人体无害。
实施案例:华侨城
2. 活动广场绿地
活动广场主要提供社区居民休闲、交流、活动的场所,其绿地设计应考虑:
? 树冠覆盖面积大,提供林荫下的休息环境;
? 大树可作为重要的构成元素,成为视觉焦点;
? 大片草坪也可作为提供人们活动的绿地
实施案例:四季花城,万科城
3. 居住区不同地貌特征配植方式——山地及坡地项目
山地项目大多位于城市郊区,原始生态环境较好的区域,其种植应与周边环境相近,考虑季相变化,乔木种植密度相对较大,用浓密的绿色将建筑与自然相融合。同时因山地的开发,将不可避免地破坏山体的原始地貌,生态护坡的应用能有效恢复生态,在植物品种的选择上也应选用本地原生品种。
实施案例:东方尊峪、东海岸
4. 居住区不同地貌特征配植方式——滨海项目
滨海项目靠近海岸,常年受海风影响,空气潮湿且盐分重,所以需选用抗逆性强,有一定抗风能力的植物品种。另外,滨海原生特色品种植物也应尽可能地引入该类住区进行种植。从配植方式上来看,滨海项目同样应具有其景观的独特性,植物设计应以自然、生态为主。
实施案例:17英里
5. 居住区不同地貌特征配植方式——都市系列项目
都市系列项目主要指在城市内及近郊区域的项目,其主要特点是项目人口多,空间小,产品为高层及多层,居民对配套及活动空间的需求较大。因此,该类项目的种植设计要求大乔木种植密度较低,灌木修剪较精致,草坪面积居多。
实施案例:龙湖
6. 居住区不同地貌特征配植方式——旧城改造类项目
旧城改造项目:因其所蕴含的文化背景而不同于一般的都市系列项目。该类项目中最具保留价值是有着历史见证意义的树木,而树木保护工作却是所有保留项中最难以得到保证的。此类项目的景观及绿化设计必须保证将这些保留树木用在最合适的景观重点位置,以突出项目特有的人文内涵。
实施案例:东莞运河东
三
维护修剪原则
3.1 养护原则:
1. 理解设计意图,维护设计效果;
2. 根据不同类型的植物配植方式,进行相应的修剪养护;
3. 根据植物的不同习性,进行相应的修剪养护;
3.2 养护出现问题
1. 项目:十七英里
问题:不理解设计意图,随意更换原设计植物,导致住区植物景观日益偏离设计效果。
建议:正确理解设计方,养护前的任何改变应事先知会设计。
2. 项目:十七英里
问题:不理解设计意图,不能依据项目的特殊风格进行植物养护,使项目风格趋于统一而失去产品特性。
建议:正确理解设计方,养护前的任何改变应事先知会设计。
3. 项目:十七英里、东海岸
问题:不理解植物习性,不能依据不同植物特有的形态及生长规律去进行修剪,破坏植物景观。
建议:保持植物原有形态,不要过多修剪。
四
植物栽种案例
4.1 项目:东莞运河东
优点:东莞运河东项目为一旧城改造项目,场地内有大量原生植被。该项目在开发前期就对保留现场树木做了大量工作,方案汇报时就确定要结合现场树木的位置来进行建筑及景观的设计,使大量树木得以在原地保留,并在现场发挥着其不可小觑的景观效果。
建议:保留树木可以在开盘期就达到很好的效果,前期规划应充分考虑保留场地原有树木。
4.2 项目:十七英里一期
问题:17英里一期屋面绿化采用的是佛甲草,刚种植后效果较好,但2-3个月后就发现,佛甲草中夹杂了大量野草,且长势明显强过佛甲草。待除掉野草后,佛甲草的覆盖率明显降低,大量地方种植介质裸露。原因是施工单位在施工时贪图方便、省钱,就近取用了普通的黄土,这种土中富含各种野生草籽,在其养护过程中又为催其生长,施用了大量化学肥料,导致野草生长迅猛,并很快抑制了佛甲草的生长。
建议:要求施工单位全部重做,将种植介质全部换为不含草籽的泥碳土。
4.3 项目:东海岸
问题:大香樟栽植过密
建议:中小乔木控制4-6米间距,大乔木间距控制在6米以上
4.4 项目:第五园
问题:原设计花池没有收边。小灌木在路边易被践踏。
建议:后期改进花池转角处用石材收边。保证效果,且不容易被踢坏。
4.5 项目:东莞高尔夫城市花园
问题:商业街前原设计为一排5米高小叶榕,后仅留设计销售入口处油棕,其他油棕移到商业前停车位后面,商业街前仍种小叶榕。
因采购小叶榕为地苗,移植到场地后开始枯黄掉叶。不符合开盘时需要郁郁葱葱的效果。
建议:将小叶榕改为黄槐。因黄槐体形较小,不会遮挡商业,而且11月份(开盘期)正是开花季节。应尽量考虑开盘期最好的景观效果。
03
硬景标准化配置
石材铺面
一
前期规划
石材选择
黄锈石、芝麻灰、江西红、芝麻黑或夕阳红。
(注:以上五种材料应占所有石材的60%以上)
常用石材规格
1.厚度:
人行道路:火烧面20mm,荔枝面30mm,机切面20mm
车行道路:石材用于收边,厚度50mm
小区休闲场地:石材用于收边,火烧面20mm,荔枝面30mm,机切面20mm
花池压顶:50mm
侧壁:火烧面20mm,荔枝面30mm,机切面20mm,蘑菇面30mm
踏步:踏面50mm,踢面20mm
2.长宽:
人行道路:正方形铺装不超过400×400mm,长方形铺装长边不超过600mm
车行道路:正方形铺装不超过300×300mm
二
景观设计
铺装图案:
无障碍设计
一
前期规划
? 在居住区内公共活动中心,必须为残疾人通行设置无障碍通道。在每个居住组团内部至少要有一条无障碍通道路径
? 居住区主次入口,公共建筑(如会所和商业),住宅入口等必须设置残疾人坡道
? 居住区内的景观必须考虑老人和残疾人的需求。景观应有穿越路径,促进运动意愿和亲近人的植物
二
景观设计
残疾人坡道:
坡道提示设置:
坡度:轮椅坡度一般为6%,最大不超过8.5%,并采用防滑路面
扶手:方便老人和残障人员使用,供轮椅使用的坡道应设为0.65m与0.85m的两道扶手
三
案例分析
室外台阶
一
景观设计
室外台阶样式选择:
尺寸与扶手高度:
休息平台设置:
台阶投影长度3m应设置休息平台一处
照明要求:
台阶处照明建议采用侧壁灯,或安放在台阶两侧的草坪中。如果不是因为台阶过宽而导致照明不足,不要将照明安置在台阶正垂直面(踢脚灯)
材料选择:
台阶面避免使用抛光石材,应对石材进行防滑处理,既防反光,也防滑
人行道和车行道
一
前期规划
设计原则
? 明确的导向性:通过道路的尺度、路面质地、材料色彩的选择强调道路级别。
? 强化观景视线:道路两侧设置绿化带,交叉口设置绿地环岛,内种植物,形成重要的实现焦点。
? 便捷的连通性:休闲性人行步道、园道串联花台、亭榭、水景、游乐场等,形成休闲空间的有序展开。
? 分级:因保证小区级及主要组团级道路(不包括宅间路)人行系统的完整性。
小区级道路最少应保证最少一侧有人行道。人行道宽度应不小于1.2米。
绿化隔离带宽度宜大于0.9m,小于0.9m时应种植灌木,以保护行人安全。
二
景观设计
2.1 道路材料
2.2 入口装置(配图)
2.3 减速装置
减速带应在规划设计阶段就考虑设置位置,避免后期临时增加橡胶及水泥类减速带。
减速带应在人行横道或有人流横向穿越处之前3米设置,保证减速距离。
三
案例分析
以深圳、广州建成项目出现的问题为案例,分析提出解决建议。
停车位
一
景观设计
停车位尺度控制:
停车场典型尺寸:
二
案例分析
以深圳、广州建成项目出现的问题为案例,分析提出解决建议。
04
水景标准化配置
一
前期规划
? 水景和游泳池因为建造和后期维护成本高,应严格控制水面比例。水景面积和泳池面积的综合应占景观面积的5%左右。
? 水景应用于主入口,主要景观节点。水池面积不应过大,防止儿童落水。并且控制水深,一般小于300mm。
? 考虑喷泉白噪声的影响,不宜太接近住宅。
二
景观设计
水景效果:
05
其他设施
构筑物,雕塑及小品,小区围墙,景观栏杆,园林家私,灌溉系统,室外电气系统,标识系统等等
景观构筑物
景观部品
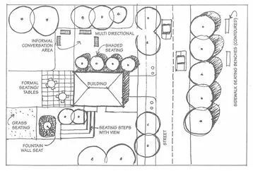
景观部品应该:
? 应容易辨认
? 应避免堆砌放置
? 应放置于容易到达的地方
? 不同尺度区域见下图:
垃圾桶
一
前期规划
垃圾桶布置规则
在小区主要的人行路边,机动车停车场边,应设置供行人及驾车人员使用的小型垃圾桶,满足临时垃圾的丢弃要求。
在小区组团级以上道路的交叉口位置,或停车超过5辆的路边停车带旁,应设置垃圾桶。有独立人行道的小区级路边,垃圾桶设置间距不应大于100米,有独立人行道的组团级路边,垃圾桶设置间距不应大于150米。
二
景观设计
形式与尺度:
三
案例分析
垃圾桶
一
前期规划
座椅布置要求
? 挡风
? 朝向好的景色
? 避开人行流线
? 给行人提供不同的选择:比如说:阳光/遮荫, 安静/活动,正式的/非正式的
座椅是很重要的环境元素,应该跟场地其他的元素协调。
二
景观设计
座椅设计要求
? 舒适性
? 简单的样式
? 简化的细部
? 容易维修
? 耐久性
? 不易损坏
雕塑
一
前期规划
雕塑要能够融入到住区周边的整个居住环境中。与环境相协调而不感突兀。
雕塑类型
创作型:必须选择专业雕塑家来创作,具备原创性、创新性
翻版型:必须选择国外原型。注意原型的知名度,以降低侵权风险
二
景观设计
雕塑设置原则
题材:适合居住氛围,题材轻松愉快,避免过于另类与严肃
风格:不可过于具象,取材尽量源自自然,对自然事物做适度变形,使其具备趣味性和可参与性,风格上提倡朴素感
材料:选择接近自然的材料,具备质感,不建议采用过于城市感或会对周围环境产生不良影响(如眩光)的材料
尺度:应适合放置雕塑的场所,避免过大或者过小,关注津人尺度的质感、纹理以及细部变化
功能:雕塑应根据在住区中所放置的位置不同而具备不同的功能。如入口处雕塑应该能够展示小区的形象
参与度:居住区雕塑应该具有变化和动感,具备可参与性
放置位置:宜放置在偏公共区域,不建议放在过于私密的空间里
